旅の栞(ハンガリー)
7月24日
パンノンハルマ [Pannonhalma]
| パンノンハルマ [Pannonhalma] ジュールの南東約21km、バコニュ山脈の北に位置する町で、チェコからやって来たベネディクト派の修道士たちが修道院を建て、ハンガリーのキリスト教信仰の出発点となった地。 また、ハンガリーで初めてのギムナジウム [Gymnasium] (大学進学準備学校) が設置された場所でもある。 聖マールトン [Szent Márton] の丘 (パンノニアの聖なる丘) の頂上にあるパンノンハルマ修道院は1996年12月にユネスコの世界遺産に登録されている。 ♬ ハンガリー舞曲第6番 演奏:ライプツィヒ・ゲヴァントハウス管弦楽団 |
|
![]() |
|
| マリオット・ブダペスト・ホテル [Mariott Budapest Hotel] (06:58)「北北東方向」MAP 今朝ここを発ち、パンノンハルマ [Pannonhalma] へ向かう。 |
|
![]() |
|
| パンノンハルマ修道院 [Pannonhalmi Főapátság] (10:30)「東方向」MAP 1996年12月にユネスコの世界遺産に登録されたパンノンハルマ修道院は清貧と貞潔を旨としたベネディクト派らしく、人里離れた海抜282mの聖マールトン [Szent Márton]* の丘に立っている。 * 聖マールトン [Szent Márton] はハンガリー語、ラテン語では聖マルティヌス [Sanctus Martinus]、英語では聖マールティン [Saint Martin] 。 伝統によれば、マールトンは316年または317年にパンノンハルマの城の丘の隣で生まれたと伝えられ、殉教をせずに列聖されたヨーロッパ初の聖人で、ハンガリーの守護聖人でもある。 |
|
![]() |
|
| パンノンハルマ修道院の駐車場 (10:34)「南方向」MAP 左の矩形の建物がチケット売り場で、その3階から右に延びる歩道がパンノンハルマ修道院へのツアーコース。 |
|
![]() |
![]() |
| パンノンハルマ修道院のチケット売り場 (10:36)MAP |
|
![]() |
|
| パンノンハルマ修道院へのツアーコース (10:45)「南東方向」MAP |
|
![]() |
![]() |
| (10:47)「南東方向」MAP |
(10:48)「北西方向」MAP |
![]() |
|
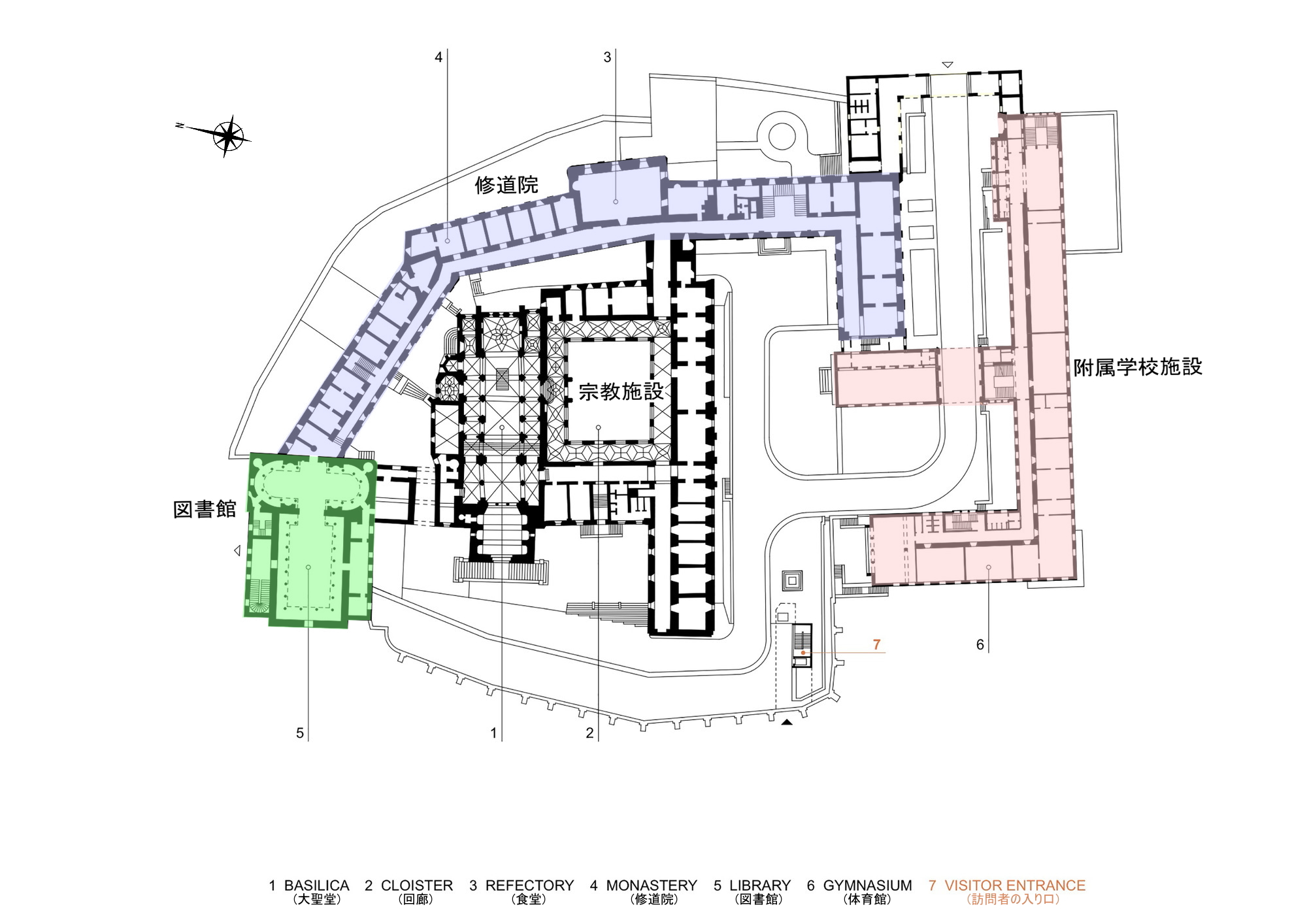
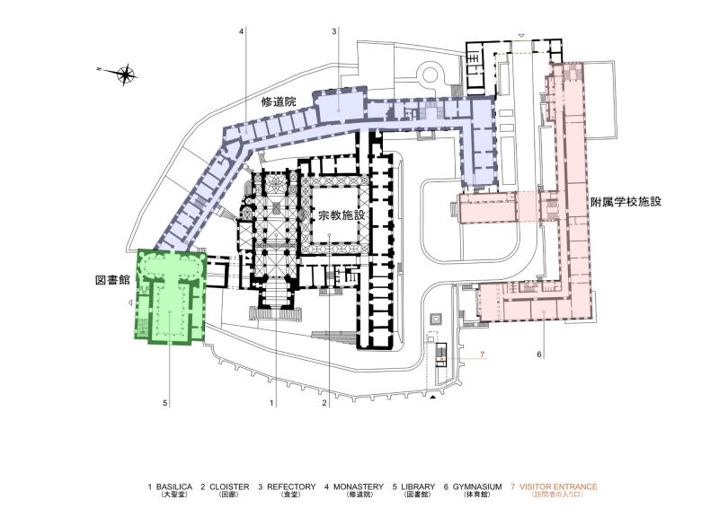
| パンノンハルマ [Pannonhalma] の見取り図 元画像出典 |
|
![]() |
|
| パンノンハルマ修道院 [Pannonhalmi Főapátság] の正面ゲート (10:50)「南西方向」MAP |
|
![]() |
|
| パンノンハルマ修道院 [Pannonhalmi Főapátság] の正面ゲート (10:50)「西南西方向」MAP |
|
![]() |
![]() |
| 「南西方向」MAP |
「西北西方向」MAP |
| 正面ゲートの鉄扉 (10:51) 左扉には "996~" の文字が記されており、右扉には "1943" の文字が記されている。 これは、996年に修道院が創設され、このゲートが完成したのが1943年であることを示している。 |
|
![]() |
|
| 左の白いプレートに記されている人物名 (10:51)「北北西方向」MAP 名前は、フリードリッヒ・ボルン [Friedrich Born] (スイス赤十字国際委員会ブダペスト代表)。 1944年5月~1945年1月、何千人ものユダヤ人に赤十字社の保護状を発行し、ユダヤ人を収容所や死の行進から救った。 またユダヤ人4,000人に労働許可証を与え、国外追放を防いだ。 60以上のユダヤ系施設を赤十字社の保護下に置き、7,000人以上のユダヤ人の子供達を保護した。 この人道的行為によって1万1千人から1万5千人ものユダヤ人の命が救われた。 この修道院は、第二次世界大戦時には国際的に保護され、爆撃対象から外されていた。 そのため多くの人々の避難場所になっていた。 ちなみに、多くのユダヤ人を救った日本人として "杉原 千畝 (すぎはら ちうね)" 氏が世界的に知られている。 |
|
![]() |
|
| 左の白っぽい建物は修道院の敷地内にある全寮制男子校 (10:52)「西南西方向」MAP 修道院付属の学校となれば宗教的教育が中心と思われがちだが、実際の教育内容は一般校と変わらないとのこと。 パンノンハルマ修道院はハンガリーで初めてギムナジウム [Gymnasium] (大学進学準備学校) が設置された場所である。 |
|
![]() |
|
| パンノンハルマ修道院の正面ゲート (10:52)「東北東方向」MAP 修道院の敷地内部から正面ゲート方向を望む。 |
|
![]() |
|
| 左手は修道院の敷地内にある全寮制男子校 (10:52)「西南西方向」MAP |
|
![]() |
|
| パンノンハルマ修道院の正面ゲート (10:52)「東北東方向」MAP 修道院の敷地内部から正面ゲート方向を望む。 右手に見える建物が修道院付属の学校とその寄宿舎で、現在約300人の学生が学んでいる。 |
|
![]() |
|
| Szent Asztrikの像 (10:53)「北西方向」MAP 学校の建物の間を抜けると正面には "Szent Asztrikの像" が見えてくる。 |
|
![]() |
|
| パンノンハルマ修道院 [Pannonhalmi Főapátság] (10:53)「北北西方向」MAP 前方のベージュ色の建物は教会など宗教的行事に使われる建物で、18世紀に再建されている。 |
|
![]() |
|
| Szent Asztrikの像 (10:53)「北西方向」MAP 聖アストリック [Szent Asztrik] は、セントマーティンズヒル (パンノンハルマ) に建てられた最初のハンガリーのベネディクト修道院の修道院長であった。 |
|
![]() |
|
| Szent Asztrikの像 (10:54)「西北西方向」MAP ローマ法王から派遣され、この地に初めてハンガリーの王冠を携えてきた使者の像で、左手にダブル・クロスの杖を持ち、右手にはハンガリーの王冠が携えられている。 この像は " 聖冠に敬意を表し" 1896年に造られた。 |
|
![]() |
|
| 黄色のバロック様式の建物 (10:54)「東方向」MAP 1002年にハンガリーの初代国王であるイシュトヴァーンによって修道院の設立が正式に認められ、ハンガリーで最初のキリスト教の修道院になった。 その後キリスト教を布教するためにいろいろな活動を進めていたが、1526年のオスマントルコ軍団による襲撃で、この地もオスマントルコの支配下に納められてしまう。 オスマントルコはイスラム教徒であることから修道院の活動は禁止され、また多くの建物も破壊された。 オスマントルコによる支配は約150年にわたり続いたが、そのご支配力は徐々に低下し、最終的にオスマントルコによる支配から逃れられたのは18世紀に入ってからである。 18世紀には破壊された建物の修復や改築が大々的に行われ、この黄色のバロック様式の建物はそのとき増改築されたものである。 この建物は、修道士の人達が生活している建物で、現在約40人の修道士たちが生活している。 多くある仕事の中で修道士にとって最も大切なものは、教鞭を執ること、つまり教師になることで、宗教的な知識のみではなく、物理、数学、国語、第二外国語など多岐にわたる知識が必要とされている。 |
|
![]() |
|
| 前方の建物は修道院の敷地内にある全寮制男子校 (10:55)「南南東方向」MAP 修道院付属の学校となれば宗教的教育が中心と思われがちだが、実際の教育内容は一般校と変わらないとのこと。 パンノンハルマ修道院はハンガリーで初めてギムナジウム [Gymnasium] (大学進学準備学校) が設置された場所。 |
|
![]() |
|
| 左の黄色の建物は修道院、右の白い建物は学校の建物 (10:55)「東南東方向」MAP |
|
![]() |
|
| バロック様式の修道院建物 (10:55)「東方向」MAP 1002年にハンガリーの初代国王であるイシュトヴァーンによって修道院の設立が正式に認められ、ハンガリーで最初のキリスト教の修道院になった。 その後キリスト教を布教するためにいろいろな活動を進めていたが、1526年のオスマントルコ軍団による襲撃で、この地もオスマントルコの支配下に納められてしまう。 オスマントルコはイスラム教徒であることから修道院の活動は禁止され、また多くの建物も破壊された。 オスマントルコによる支配は約150年にわたり続いたが、そのご支配力は徐々に低下し、最終的にオスマントルコによる支配から逃れられたのは18世紀に入ってからである。 18世紀には破壊された建物の修復や改築が大々的に行われ、この黄色のバロック様式の建物はそのとき増改築されたものである。 この建物は、修道士の人達が生活している建物で、現在約40人の修道士たちが生活している。 多くある仕事の中で修道士にとって最も大切なものは、教鞭を執ること、つまり教師になることで、宗教的な知識のみではなく、物理、数学、国語、第二外国語など多岐にわたる知識が必要とされている。 |
|
![]() |
|
| 前方はパンノンハルマ集落を一望できるテラス (10:55)「西南西方向」MAP |
|
![]() |
|
| 前方の建物は修道院の敷地内にある全寮制男子校 (10:55)「南方向」MAP 修道院付属の学校となれば宗教的教育が中心と思われがちだが、実際の教育内容は一般校と変わらないとのこと。 パンノンハルマ修道院はハンガリーで初めてギムナジウム [Gymnasium] (大学進学準備学校) が設置された場所である。 |
|
![]() |
|
| 左から、宗教、修道院、学校施設と並ぶ (10:57)「東方向」MAP |
|
![]() |
|
| パンノンハルマ集落を一望できるテラス (10:58)「南方向」MAP パンノンハルマ修道院は海抜282mの聖マールトンの丘 (パンノニアの聖なる丘) の頂上にあり、ここからは人口約3600人のパンノンハルマ集落を一望できる。 古代ローマ時代 (約2000年前) には、ハンガリーはローマの属州であり、当時のローマ人はこの地をパンノニア [Pannonia] と呼んでいた。 このパンノンハルマの語源は古代ローマ時代のパンノニア [Pannonia] に由来している。 |
|
![]() |
|
| パンノンハルマ集落を一望できるテラスからの眺望 (10:58)「南西方向」MAP |
|
![]() |
|
| パンノンハルマ集落を一望できるテラスからの眺望 (10:58)「北西方向」MAP |
|
![]() |
|
| 修道院の宗教施設の建物 (10:58)「北北東方向」MAP 1002年にハンガリーの初代国王であるイシュトヴァーンによって修道院の設立が正式に認められ、ハンガリーで最初のキリスト教の修道院になった。 その後キリスト教を布教するためにいろいろな活動を進めていたが、1526年のオスマントルコ軍団による襲撃で、この地もオスマントルコの支配下に納められてしまう。 オスマントルコはイスラム教徒であることから修道院の活動は禁止され、また多くの建物も破壊された。 オスマントルコによる支配は約150年にわたり続いたが、そのご支配力は徐々に低下し、最終的にオスマントルコによる支配から逃れられたのは18世紀に入ってからである。 18世紀には破壊された建物の修復や改築が大々的に行われ、この建物もその時に再建されたものである。 |
|
![]() |
|
| 修道院の宗教施設の建物 (10:58)「北北東方向」MAP |
|
![]() |
|
| パンノンハルマ集落を一望できるテラス (10:59)「北方向」MAP |
|
![]() |
|
| パンノンハルマ集落を一望できるテラス (10:59)「南方向」MAP |
|
![]() |
|
| パンノンハルマ集落の全貌 (10:59)「南西方向」MAP |
|
![]() |
|
| パンノンハルマ集落の全貌 (10:59)「北西方向」MAP |
|
![]() |
![]() |
| 修道院の時計塔 (11:00)「北東方向」MAP 教会の正面入口の上には綺麗なモザイク画が施されている。 |
|
![]() |
|
| 修道院の時計塔 (11:00)「東北東方向」MAP 19世紀にヤーノシュ・パックによって建てられた時計塔 (高さ55m) で、修道院のシンボルとなっている。 下にある扉は教会の正面入口。 通常は向かって右に見えるアーチ状の入口が使用される。 |
|
![]() |
|
| 修道院の時計塔に施されたモザイク画 (11:01)「東北東方向」MAP 正面入口の上には綺麗なモザイク画があり、その中央には十字架を持った女性が椅子に座っている。 この女性は聖母マリアさまだと言う人や、ただ単にカトリックを象徴する女性だと言う人がいて、真偽のほどは定かではありません。 向かって女性の左にいる紫色のマントを羽織った男性は初代国王の聖イシュトヴァーンで、右手に持った証書 (1002年、修道院の設立を正式に認める証書) をお付きの者に渡している。 女性の右にいる赤い服を着てグリーン色のマントを羽織った男性はオーストリア皇帝フランツ1世 (ヨーゼフ2世の甥) で、神聖ローマ帝国ヨーゼフ2世の修道院廃止令によって1786年に閉鎖されたこの修道院に対し、1802年に再興許可が与えられる様子を示している。 ちなみに、再興された1802年に国の認可を受けたギムナジウムが創設され、ここからハンガリーの教育史が始まる。 |
|
![]() |
|
| パンノンハルマ集落を一望できるテラス (11:03)「南方向」MAP |
|
![]() |
|
| パンノンハルマ集落を一望できるテラス (11:05)「南南西方向」MAP |
|
![]() |
|
| これから入場に向かう (11:05)「東南東方向」MAP |
|
![]() |
|
| 1995年に造られたパラダイスの扉から入場 (11:06)「東北東方向」MAP |
|
![]() |
|
| パラダイスの扉には地球上にいる様々な動物が浮き彫りにされている (11:06)「東北東方向」MAP |
|
![]() |
|
| 1.keresztelőkápolna / baptistery (洗礼場、洗礼用の水槽) 2.föhajó / nave (身廊) 3.stallum / planum (内陣席) 4.szentély / sanctuary (聖域、聖壇) 5.kripta / crypt (内陣の地下もしくは半地下の、聖人墓や聖遺物 を保管する部屋。) 6.mellékhajó / aisle (側廊) 7.Szűz Mária kápolna / Virgin Mary's chapel (聖母マリアの礼拝堂) 8.Szent Benedek kápolna / St. Benedict's chapel (聖ベネディクト礼拝堂) |
9. barokk sekrestye / baroque sacristy (バロック聖具室) 10. tömjén előkészítő / incense preparation (お香の準備室) 11. stációk / station (十字架の道行き) 12.alsó sekrestye / lower sacristy (下の聖具室) 13.szerzetesi öltözője / older monks changing room (修道院のロッカールーム) 14.pasztorációs helyiség / pastoral room (司牧の部屋) 15.kerengö / cloister (回廊) 16.orgona / organ (オルガン) 「縦断面図に表示」 |
| 元画像出典 | |
![]() |
![]() |
| クジャクのステンドグラス (11:08) MAP
|
|
![]() |
|
| パラダイスの扉 (11:08)「東南東方向」MAP
|
モザイク画が展示された廊下 (11:10) MAP
|
![]() |
|
| 5000個を超える小さな石の組み合わせで描かれた聖母マリアのモザイク画 (11:12) MAP
19世紀にイタリアのベネチアで造られたもので、皇妃エルジェーベト (シシィ) の長男のルドルフ皇太子がベルギーから嫁いだステファニーと結婚、その時、シシィーの夫でありルドルフの父親である皇帝フランツ・ヨージェフから結婚祝いとしてステファニーに贈られた物。 しかしルドルフ皇太子はマイヤーリングの狩りの館で愛人とピストル自殺を遂げる。 その後ステファニーはハンガリー貴族のローニャイ・エレメール伯爵 [Elemér Lónyay] と再婚、彼女は遺言で亡くなた後、ここパンノンハルマに私たちの遺骨を埋めて欲しいと願い、遺骨の埋葬に伴って身の回りの一部がここに遺されている。 遺骨は教会の主祭壇の下にある地下室に葬られている。 |
|
![]() |
|
| 聖マールトン大聖堂 [Szent Márton Bazilika] (11:12) MAP
ゴシック様式で造られた教会内部 |
|
![]() |
|
| 聖マールトン大聖堂 [Szent Márton Bazilika] (11:12) MAP
この後方に普段は開けられることのない正面入口がある |
|
![]() |
|
| 聖マールトン大聖堂 [Szent Márton Bazilika] (11:13) MAP
ゴシック様式で造られた教会内部 |
|
![]() |
|
| 聖マールトン大聖堂 [Szent Márton Bazilika] (11:14) MAP
中央前方にあるのが主祭壇で、中世に造られた教会の多くは東に主祭壇を、西に正面入口が設けられている。 これは朝には主祭壇に立つ司教さんに後光差し、夕方には正面入口が夕日に照らされ、天国への入口をイメージさせる視覚効果があると言われてる。 |
|
![]() |
![]() |
| 聖マールトン礼拝堂の身廊部 (11:18) MAP
|
|
![]() |
|
| 聖マールトン礼拝堂 (11:14) MAP
中央の主祭壇にはラテン十字が設けられている。 |
聖マールトン礼拝堂 (11:20) MAP
1985年にブダペストで造られたオルガンで、1000本以上のパイプが使用されている。 |
![]() |
|
| 聖マールトン大聖堂 [Szent Márton Bazilika] (11:21) MAP
この教会は過去3回の増改築が行われているが 、残されている最も古い建築物は写真右の壁面で、1100年代の物と言われている。 中央の丸い近代的なステンドグラスの中に描かれている人物は聖人マールトン [Szent Márton] で、彼は316年ごろ、ローマ帝国領パンノニア州 (現ハンガリー) サバリアに生まれる。 397年 (一説には400年) にトゥーレーヌのカンドで没。 ローマ帝国軍の将校であった父の転任で、子供の頃パヴィーアへ移住し、のちにローマ軍に入隊した。 所属する連隊が、しばらくしてガリアのアミアンに派遣された時、「マントの伝説」が起こる。 ある非常に寒い日、アミアンの城門で、マールトンは半裸で震えている物乞いを見た。 彼を気の毒に思ったマールトンは、自分のマントを持っていた剣で引き裂、半分を物乞いに与えた。 そして、その夜、彼は夢を見る。 なんと、この物乞いがイエス・キリストであったことを悟る。 これが受洗のきっかけとなり、その後軍を除隊したマールトンは多くの善行を積んだ後、列聖される。 マールトンは生前に列聖された最初の人物で、彼が持っていた半分のマントは、「聖マールトンのマント」として、フランク王国の歴代国王の礼拝堂に保管されている。 |
|
![]() |
|
| 聖マールトン大聖堂 [Szent Márton Bazilika] (11:21) MAP
正面の祭壇と向かい合うように、身廊の後部にあるパイプオルガン。 その下の外光が透けて見えるところが拝廊で、正面入口があね。 |
|
![]() |
|
| 聖ベネディクトゥス礼拝堂 [Chapel of St. Benedict] (11:21) MAP
ここに礼拝堂が造られたのは15世紀末。 ただし、装飾に関しては19世紀に入ってからの物。 |
|
![]() |
|
| 聖ベネディクトゥス礼拝堂 [Chapel of St. Benedict] (11:22) MAP
ここに礼拝堂が造られたのは15世紀末。 ただし、装飾に関しては19世紀に入ってからの物。 |
|
![]() |
![]() |
| 聖ベネディクトゥス礼拝堂 (11:23) MAP
祭壇に向かい合う壁面には宗教画が描かれている。 |
聖ベネディクトゥス礼拝堂 (11:23) MAP
聖ベネディクトゥス礼拝堂の祭壇。 |
![]() |
|
| 処女マリアに捧げる礼拝堂 (11:23) MAP
礼拝堂が造られたのは16世紀。 ステンドグラスや置かれている装飾品は19世紀に入ってからの物。 |
|
![]() |
|
| 処女マリアに捧げる礼拝堂 (11:23) MAP
礼拝堂が造られたのは16世紀。 ステンドグラスや置かれている装飾品は19世紀に入ってからの物。 |
|
![]() |
|
| 柱の台座部分 (11:23) MAP
柱の台座部分にはカエルや葡萄などの彫刻が施されている。 これは13世紀に造られた物。 |
|
| Cryptにある、ステファニー墓地の 360°パノラマ 出典:Archabbey of Pannonhalma Crypt |
|
![]() |
![]() |
| ステファニーの墓地 (11:24) MAP
主祭壇の下にあるステファニーと2番目の夫、ローニャイ・エレメール伯爵の墓地へ向かう |
ステファニーの墓地 (11:24) MAP
ローニャイ・エレメール伯爵夫妻の墓地。 |
![]() |
|
| 特徴的な梁で造ったゴシック様式初期の天井 (11:24) MAP
|
|
![]() |
|
| ローニャイ・エレメール伯爵の石碑 (11:26) MAP
祭壇の右手に、壁に嵌め込まれた四角い石碑は、ステファニーの二回目の夫、ローニャイ・エレメール伯爵の墓石。 |
|
![]() |
|
| ローニャイ・エレメール伯爵の石碑 (11:27) MAP
祭壇の左手に、壁に嵌め込まれた四角い石碑は、、妻ステファニーの墓石。 |
|
![]() |
|
| ローニャイ・エレメール伯爵夫妻の祭壇 (11:27) MAP
|
|
![]() |
|
| 大理石の玉座 (11:28) MAP
中世の頃は、教会の主祭壇の下に玉座を設けるのが一般的だった。 この地下室は一部19世紀に修復されたものの、殆どの物は13世紀に造られたままの姿で遺されている。 |
|
![]() |
|
| マールトンのマントの伝説が描かれた入口 (11:29) MAP
マールトンがローマ軍に入隊した後、しばらくして彼の所属する連隊がガリアのアミアンに派遣された。 そして、その時「マントの伝説」が起こる。 ある非常に寒い日、アミアンの城門でマールトンは半裸で震えている物乞いを見たとき、彼は気の毒に思い、自分のマントを持っていた剣で引き裂、半分を物乞いに与えた。 そして、その夜、彼は夢を見る。 なんと、この物乞いがイエス・キリストであったことを悟る。 これが受洗のきっかけとなり、その後軍を除隊したマールトンは多くの善行を積んだ後、列聖された。 マールトンは生前に列聖された初めての人物で、殉教せずに列聖されることは珍しい。 |
|
![]() |
|
| マールトンのマントの伝説が描かれた出入口 (11:30) MAP
中世の頃はここで生活をしていた修道士たちが、教会の出入り口としてよく使用していた。 この扉自体は19世紀に造られた物だが、左右にある多数の柱は13世紀に造られた物で重厚感を醸し出している。 この入口の前は回廊になっていて、修道士の人たちが瞑想にふけるためよく歩いていたとのこと。 |
|
![]() |
|
| 1578年にラテン語で書かれた落書き (11:33) MAP 5名の名前 ? が書かれた落書きで、名前自体には大きな意味は無いが、最も古い落書きとして残っている。 なんと、この落書き、入場チケットのデザインとして現在使用されている。 430年も前からこのような落書きがあったとは....。 |
|
![]() |
|
| 聖イシュトバーンの礼拝堂 (11:35) MAP
右のステンドグラスは、初代国王の聖イシュトヴァーンが跪いて、ハンガリーの守護聖人であるマリアさまに王冠を捧げる場面を描いている。 聖イシュトヴァーンの名は、石打の刑で殉教したキリスト教徒の名前で、この名を洗礼名として授けられた。 初代国王のイシュトヴァーンはキリスト教の布教に大変貢献したため、死後、列聖されている。 ちなみに、洗礼前のイシュトヴァーンの名前はヴァイク [Vajk] 。 |
|
![]() |
|
| 聖イシュトバーンの礼拝堂 (11:35) MAP
1031年9月2日、イシュトヴァーンの一人息子イムレ王子が狩猟の最中に亡くなり、王は後継者を失ってしまう。 そこで、イシュトヴァーンはマリア様にお伺いを立て、王冠をマリア様に託されたと言われている。 ちなみに、この部屋自体は19世紀に造られている。 |
|
![]() |
|
| 回廊の壁に遺された謎の数字 (11:36) MAP
この数字は判じ物で、回廊が出来た1486年を表している。(左から二つ目の文字は8の半分で4と読むそうです。) |
|
![]() |
|
| 未完成の回廊の壁 (11:38) MAP
この部分は故意に残した物で、壁の一部をガラス張りで覆い、展示物としている。 絵の描かれた奥の壁は12世紀に造られたもので、黒い部分はイエスキリストを描いたものと想像されている。 分厚い煉瓦壁の部分はこの回廊が造られた1486年頃のもの。 |
|
![]() |
|
| 未完成の回廊の壁 (11:39) MAP
回廊の壁の一部が、工事途中の状態のまま展示物として残されている。 |
|
![]() |
|
| パンノンハルマ集落を一望できるテラス (11:40)「西方向」MAP 教会からいったん外に出て、修道院の中にある図書館 (古文書館) へ向かう。 |
|
![]() |
|
| 修道院の中にある図書館 (古文書館) へ向かう (11:40)「東方向」MAP |
|
![]() |
|
| 修道院の中にある図書館 (古文書館) へ向かう (11:41)「北北西方向」MAP 左手には古い時代の建物の一部が展示されており、その前方に図書館の入口がある。 |
|
![]() |
|
| 教会と修道院に囲まれた中庭 (11:41)「東方向」MAP 黄色のバロック様式の建物は修道院で、右の白い建物は教会。 |
|
![]() |
|
| 教会と修道院に囲まれた中庭 (11:42)「南東方向」MAP 左の黄色の建物は修道院で、右の白い建物は教会。 |
|
![]() |
|
| パンノンハルマ図書館 見取り図 [Pannonhalma Library Floor Plan] 元画像出典 |
|
![]() |
|
| 図書館 (古文書館) の入口 (11:42) MAP |
|
![]() |
|
| 図書館 (古文書館) の入口 (11:42) MAP
|
|
![]() |
|
| 図書館 (古文書館) の内部 (11:43) MAP
40万冊以上の蔵書を誇る図書館 (古文書館)で、天井は凸凹して見えるが実は平面に書かれた騙し絵。 |
|
![]() |
|
| 図書館 (古文書館) の内部 (11:43) MAP
ラテン語文献のほかにマジャル語の起源を知るうえで貴重な史料が多い。 蔵書は宗教書のみならず、法学、薬学、地理学、物理学、数学など広範囲にわたり18~19世紀に作成された地球儀も展示されている。 |
|
![]() |
|
| 図書館 (古文書館) の内部 (11:43) MAP
この図書館は古文書のみではなく、最新の書籍がリアルタイムに増補されている。 |
|
![]() |
|
| 図書館 (古文書館) の内部 (11:44) MAP
この立派な図書館は単なるディスプレーではなく、一般の図書館と同様、ハンガリー国民であれば誰でも本を借りることが出来る。 ただし、ここに来て自分で好きな本を選ぶのではなく、図書館専門の事務所に行って、希望の本を申し込めば係の人がここから本を届けてくれるシステムになっている。(歴史的に貴重な本については研究者のみに限られている。) |
|
![]() |
|
| 図書館 (古文書館) の内部 (11:44) MAP
書籍はここで見られる物だけではなく、本棚の後ろとか地下室などの別室にも保管されており、40万冊を超える蔵書がある。 |
|
![]() |
|
| 図書館 (古文書館) の内部 (11:45) MAP
この窓からパンノンハルマの集落を一望できる。 |
|
![]() |
|
| 図書館 (古文書館) の天井 (11:45) MAP
天井は凸凹して見えるが実は平面に書かれた騙し絵。 |
|
![]() |
|
| 図書館 (古文書館) の内部 (11:46) MAP
この二人の立像は、時計塔のモザイク画に描かれていた人物で、向かって左は初代ハンガリーの国王イシュトヴァーンの像、右はオーストリア皇帝フランツ1世の像。 この二つの像はフランツ1世が作らせた。 |
|
![]() |
|
| 図書館 (古文書館) の内部 (11:46) MAP
|
|
![]() |
|
| 図書館 (古文書館) の内部 (11:46) MAP
|
|
![]() |
|
| フランツ1世の像 (11:47) MAP
フランツ1世 (オーストリア皇帝フランツ1世、神聖ローマ帝国フランツ2世) はマリア・テレジアの次男の長男で、伯父のマリア・テレジアの長男 (神聖ローマ帝国ヨーゼフ2世 ) が修道院廃止令によって1786年に閉鎖したこの修道院に対し、1802年に再興許可を与えた人物。 |
|
![]() |
|
| 初代ハンガリー国王イシュトヴァーンの像 (11:47) MAP
1002年にハンガリーの初代国王であるイシュトヴァーンによって修道院の設立が正式に認められ、ハンガリーで最初のキリスト教の修道院になった。 |
|
![]() |
|
| 図書館 (古文書館) の内部 (11:47) MAP
|
|
![]() |
|
| 図書館 (古文書館) の内部 (11:48) MAP
この窓からパンノンハルマの集落を一望できる。 |
|
![]() |
|
| 二つの古文書 (11:48) MAP
向かって左は、1002年に国王イシュトヴァーンがパンノンハルマ修道院を初めてキリスト教の修道院として活動を認めたときの修道院設立に関する古文書 (許可書)で、修道院に与えられた特権などが書かれている。 右は1055年にティファニの修道院 [Tihanyi apátság] の設立に関し、国王イシュトヴァーンが与えた許可書で、内容はパンノンハルマ修道院とさほど変わらないが、使われているラテン語の中に58個のハンガリー語が認められている。 それ以前は共通語としてラテン語が使用されていたため古文書にはハンガリー語は残されておらず、ハンガリー語が記された古文書として最古のものになっている。 (展示物はコヒ゜ー) |
|
![]() |
|
| 図書館 (古文書館) の内部 (11:49) MAP
ここにはハンガリーの書物のみでなく、日本を含む多くの国の言語で書かれた書物が所蔵されている。 西洋の古文書の多くはラテン語で書かれている。 |
|
![]() |
|
| 図書館 (古文書館) の内部 (11:49) MAP
|
|
![]() |
|
| 図書館 (古文書館) の内部 (11:50) MAP
|
|
![]() |
|
| 図書館 (古文書館) の内部 (11:50) MAP
|
|
![]() |
|
| 図書館 (古文書館)の天井 (11:51) MAP
天井にはギリシャ神話に関する事柄が描かれている。 この絵は、戦い・知恵・道理の女神、アテナ [Athena] を描いたもの。 アテナの足下には知恵の象徴であるフクロウが描かれている。 |
|
![]() |
|
| 図書館 (古文書館) の内部 (11:51) MAP
|
|
![]() |
|
| 図書館 (古文書館) の内部 (11:51) MAP
|
|
![]() |
![]() |
| 図書館の出口付近にある売店 (11:55) MAP
|
図書館の出口付近にある売店 (11:55) MAP
|
![]() |
|
| 図書館 (売店) の出口 (12:03)「南東方向」MAP |
|
![]() |
|
| 左の白い建物は図書館、右は時計塔 (12:05)「東方向」MAP |
|
![]() |
|
| 図書館の見学を終え一休み (12:07)「東方向」MAP |
|
![]() |
![]() |
| パンノンハルマを後にスロヴァキアへ向かう (12:16)「南東方向」MAP |
|